A nos propos

Votre partenaire de confiance en immobilier et aménagement Vous recherchez un expert

Vous recherchez un expert fiable pour vos projets fonciers et immobiliers ? Entreprise ADINGRA ET FRERES SARL met son savoir-faire et son expérience à votre service pour concrétiser vos ambitions.

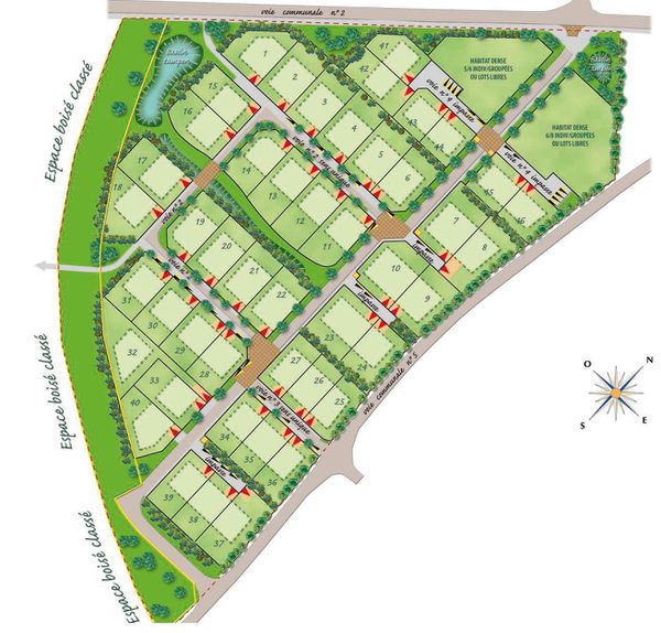
🔹 Lotissement & Aménagement foncier Nous transformons vos terrains en espaces organisés, viabilisés et prêts à bâtir. 🔹 Vente de terrains urbains et ruraux Des parcelles sécurisées, avec documents fiables et accompagnement administratif. 🔹 Promotion & Gestion immobilière Valorisation de vos biens, gestion locative et suivi professionnel de vos investissements. 🔹 Construction & Réhabilitation de bâtiments Du gros œuvre à la finition, nous réalisons et rénovons vos bâtiments avec expertise et qualité. 🔹 Suivi de dossiers & Permis de construire Nous vous accompagnons dans toutes vos démarches administratives jusqu’à l’obtention de votre permis. 🔹 Aménagement de bas-fonds Optimisation et valorisation des espaces pour un meilleur usage. 🔹 Reprofilage & Ouverture de voies Création et amélioration des voies d’accès pour faciliter la mobilité et le développement urbain.

Vous avez un projet, nous avons le terrain et l’expertise pour le bâtir.

About Main Image About Inset Image

Nos Prestations

Aménagement de bas-fonds

Optimisation et valorisation des espaces

pour un meilleur usage.

Vente de terrains urbains et ruraux

documents fiables et accompagnement administratif

Des parcelles sécurisées

Construction & Réhabilitation de bâtiments

Du gros œuvre à la finition, nous réalisons et rénovons vos bâtiments

avec expertise et qualité.

Reprofilage & Ouverture de voies

Création et amélioration des voies d’accès pour faciliter la mobilité

et le développement urbain.

Color Scheme